


工程資料
工程地址:
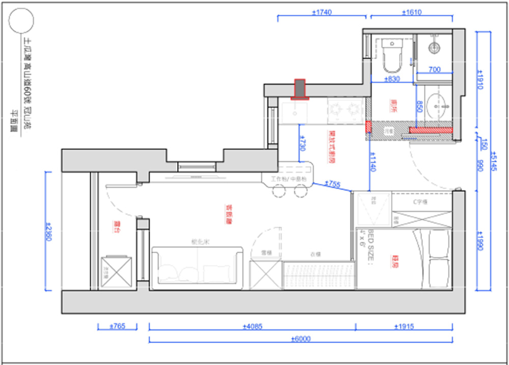
土瓜灣高山道
呎數:
281 呎
工程項目:
清水樓裝修
工程預算:
$xxx,xxx
冠山苑
本室內裝修設計工程專為一人單位住宅量身打造,面積雖小,卻以高效空間運用與巧妙間隔設計為核心,最大化收納能力,滿足日常生活需求。透過精心規劃的儲物方案,如內嵌式櫃體、多功能傢俬及地台收納系統,確保空間整潔且實用。同時,設計注重引入自然光,採用大面積玻璃窗、淺色調牆面及反光材質,增強空間感與通透感,營造明亮舒適的居住環境。整體設計兼顧美學與功能,讓小空間也能展現無限可能。
主要特色
- 最大化收納系統,包括地台,內嵌式櫃體等
- 多功能傢俬,包括可收納餐枱設計,增加空間感
- 引入自然光,增強空間感與通透感











